Skip to navigation Skip to content

Categories

Loading�
Searching...

Products

Loading�
Searching...

Content

Loading�
Searching...
Skip to blog content

How to Measure Your Bathroom Like a Pro

Transforming your bathroom starts with accurate measurements. Our step-by-step guide shows you how to measure your space, ensuring the Drench 3D design service can create your perfect bathroom layout.

When it comes to transforming your bathroom, the design process starts long before you choose tiles or taps. The foundation of a perfect bathroom makeover is an accurate floor plan and that means taking precise measurements of your space.

At Drench, our 3D bathroom design service allows you to visualise your dream bathroom before making a single purchase. But to ensure our design team can create a realistic plan tailored to your home, we need accurate measurements from you. Don’t worry - it’s simpler than you think! 

Here’s our step-by-step guide to measuring your bathroom like a pro.

Why measuring your bathroom matters

A beautifully designed bathroom isn’t just about style, it’s also about function. By measuring your space, you’ll: 

  • Ensure every product you love will actually fit

  • Avoid costly mistakes or awkward layouts

  • Give our design team the details they need to create a precise 3D representation

  • Explore colour, layout and product choices with confidence

Think of it as giving us the blueprint to build your dream bathroom in the virtual world! 

Luckily at Drench, we make the process of measuring and designing your space as simple as possible. All we need are the basic dimensions of your bathroom, a rough sketch and a few photos, and from that we can start the design process.

Grab a tape measure, pencil and your smartphone for pictures and let’s go!


 


Step 1: Bathroom dimensions

For a design consultation, we require a few basic measurements to get the ball rolling. These can be noted down on a very rough sketch of your bathroom - it doesn’t need to be perfect or to scale as the accurate measurements and photos will also help us to see the full picture. 

Your bathroom dimensions need to include: 

  • Overall ceiling height

  • Window width, height and the height from the ground to the underside of the sill (applies to each window)

  • Door width and height incl. any architrave

  • Position of window/s and door/s (distance from adjacent walls)

  • The length of each wall

  • Location of WC and soil pipe


 

how to measure your bathroom
This example floor plan shows the key areas to measure.

 

Window and door measurements are crucial for the design process.

The next thing to do is create a rough sketch of your room. Include all the measurements you’ve taken and label doors, windows and the location of your toilet and soil pipe. It’s also useful to know what type of door it is, such as hinged (standard) or pocket. For hinged doors, tell us if it swings inwards or outwards and for pocket doors, tell us whether it’s an internal cavity or external track mechanism. 

This rough plan becomes the starting point for your 3D design. 


 

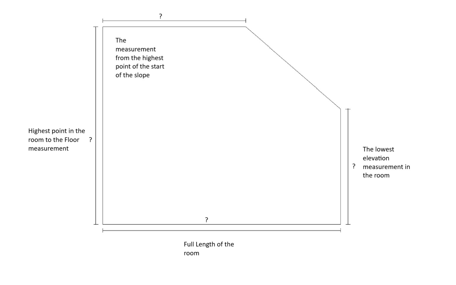
Include measurements of sloped ceilings on your sketch similar to the example above.

Step 2: Take some photos

Photos of your existing space along with your annotated sketch are really useful for our design team. Snap your bathroom from multiple angles, including close-ups of windows, doors and any unusual features. Make sure to capture areas of your bathroom that have features which may impact design, such as exposed pipework, beams or sloped ceilings or any boxed in areas as this makes sure we can create a comprehensive design. 

Pairing photos with your measurements ensures we don’t miss a single detail.


Here are some examples of the beautiful bathrooms we have helped to design for our customers. 


Step 3: Other information handy for your design consultation

Our design team will go through much of the finer details with you during your initial consultation. However, it’s useful to gather a few bits of information before your call. 

  • Water system: Do you know what type of water system your property operates on? For example, is it a combination boiler or a hot water cylinder?

  • Project timeline: Are there specific dates or timeframes you are working towards? Have you already scheduled builders or plumbers for the project?

  • Budget Allocation: How much are you planning to invest in the products needed for your bathroom? Understanding your budget will enable us to tailor our recommendations accordingly.

  • Ideas and Inspiration: Gather any inspirational imagery you have, such as Pinterest mood boards, tile selections or paint colours so we have a better idea of your vision and style preferences. 

What happens next?

If you haven’t already, book in for a design consultation with one of the team. You can do this by visiting the 3D design page and selecting the service you prefer. We offer two levels of design service: The Snapshot and The Big Picture. 

With both, you’ll receive bathroom product advice and selection according to style and budget, technical checks of chosen products and design compatibility and top-down 2D plans showing layout delivered within 2 days. 

You receive a basic 3D design with the snapshot service, handy for those who already have a clear vision and just want to sense check compatibility and have a visual reference. With the fuller service - The Big Picture - you will receive full 3D bathroom renders complete with floor and wall coverings and the chance to change layouts multiple times until it’s just right (up to 3 rounds without charge) - and an optional video consultation to talk through design. 


Ready to start designing? 

Start your bathroom upgrade safe in the knowledge that everything will look just perfect at the end! With the right measurements, you’ll see your bathroom come to life on screen before making any big decisions. You’ll be able to explore different layouts, product choices and colour schemes as you go along with our expert team. 

Learn more about our 3D Bathroom Design Service.

You might also like

Back to top